Retaining Wall & Civil Projects
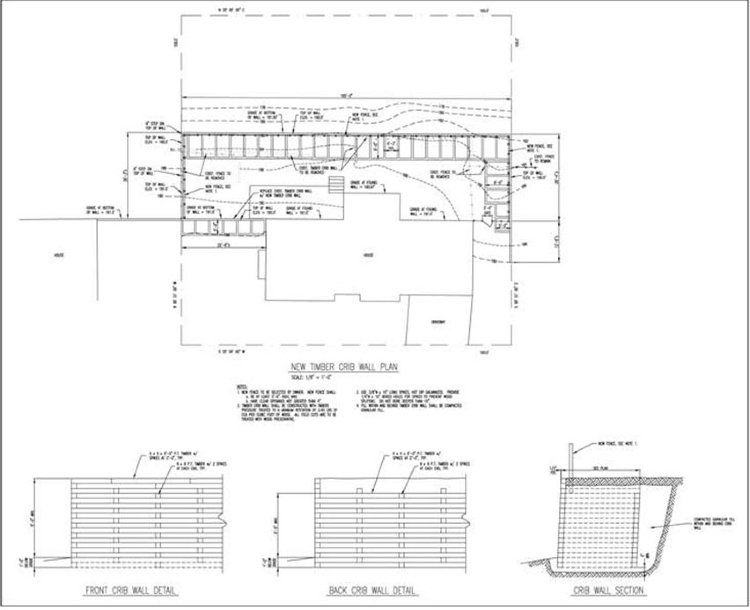
Grigg & Davis Engineers, PC have designed and detailed numerous retaining walls of all types. Below are some samples of our work. To protect the privacy of our clients, all names and addresses are withheld.
On many of our projects, we also handle the civil work, including the design & detailing of DRYWELL (i.e. storm retention basins); waterproofing of foundation walls; storm drainage; parking lots and roadways. The following photos also feature our civil engineering work completed at the Victoria Convalescent Home in Ossining, NY. Grigg & Davis Engineers, PC provided services for parking lot and roadway reconstruction, lamp lighting, walkway construction (using pavers), drainage piping, drywall and catch basin installation.
Description of Work
Installation of drywalls, catch basins and storm sewer piping throughout the grounds, repaving of asphalt roadway pavements, drainage, Belgium block curbing and brick-paved walkways at Victoria Convalescent Home, Ossining, NY; Grigg & Davis Engineers, PC in collaboration with Tony Bettino & Sons Contracting, Inc.
Click on a photo to view an enlargement and a brief explanation or to scroll through all enlargements.




















